AR
EN
مخططات الغرفة المفضّلة والتفاعلية

حل مثالي للمناقشات الأولية حول تخطيط الموقع

لا يتوقف عمل شركة Philips على تصميم معدات لمساعدة عملائها على تقديم أفضل أداء، بل هي أيضًا تعلب دورًا أساسيًا في مجال تصميم مواقع العمل وتجهيزها لتتناسب واحتياجات عملائها. من هنا، تم تصميم مخططات الغرفة المفضلة والتفاعلية من Philips لمساعدة المعماريين والمهندسين والمقاولين، إلى جانب العاملين في المنشأة، على فهم الانعكاسات الأساسية المترتبة على تركيب نظام التصوير الطبي من Philips.

ستتمكن هنا من الوصول إلى مخططات الغرفة القابلة للتنزيل بتنسيق pdf، وبتنسيق DWG وIRL وPDF متى توفر.

تجدر الإشارة إلى أن الملفات القابلة للتنزيل في هذا القسم، على الرغم من فائدتها الكبيرة، ليست خاصة بموقع بعينه أو لا تتناسب وأغراض تقديم العروض.

 

*

معلومات الاتصال

* هذا الحقل مطلوب

*
*
*
*
*
*
*
*
*

من خلال تحديد سبب التواصل بك بإمكاننا توفير خدمة أفضل لك.

We work with partners and distributors who may contact you about this Philips product on our behalf.

*
*

Final CEE consent

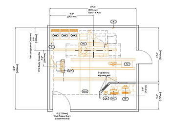
مخططات الغرفة

مخططات الغرفة المفضلة

مخططات الغرفة المفضلة


ستوفر حزم الرسومات التي نقدمها نظرة على:

  • حجم الغرفة المفضّل
  • مكان وضع المعدات
  • الأحجام والأوزان العامة، والحمل الحراري العام


تتوفر الملفات القابلة للتنزيل بتنسيق PDF أو تنسيق DWG ‏(CAD).

مخططات الغرفة التفاعلية


في بعض الحالات، قد لا تكون على علم بمعدات التصوير الطبي التي تسعى مؤسستك إلى تركيبها. من هنا، تسمح لك مخططات الغرفة التفاعلية (IRL) ثلاثية الأبعاد بإلقاء نظرة على المعدات كما تبدو في مخطط الغرفة القياسي.
يتضمن كل مخطط غرفة تفاعلي:

  • عروض تفاعلية للغرفة من منظورات متعددة
  • فيديو "إرشادي" مضمن
  • متطلبات النظام العامة


تتوفر الملفات القابلة للتنزيل لعدد كبير من أنظمة التصوير الطبي من Philips بتنسيق IRL.

ملاحظة: قد يستغرق تنزيل تلك الملفات عدة دقائق نظرًا لأحجامها الكبيرة.

مخططات الغرفة التفاعلية

حلول تخطيط الموقع

مجتمع تخطيط الموقع في Philips

يستهدف مجتمع تخطيط الموقع بالأساس المعماريين والمهندسين والمقاولين (AEC)، وهو مصدر قيم للمعلومات المفصّلة حول تخطيط الموقع  

 

اقرأ الآن

You are about to visit a Philips global content page

Continue

You are about to visit a Philips global content page

Continue

لرؤية موقعنا على ويب بأفضل طريقة، استخدم أحدث إصدار من Microsoft Edge أو Google Chrome أو Firefox.